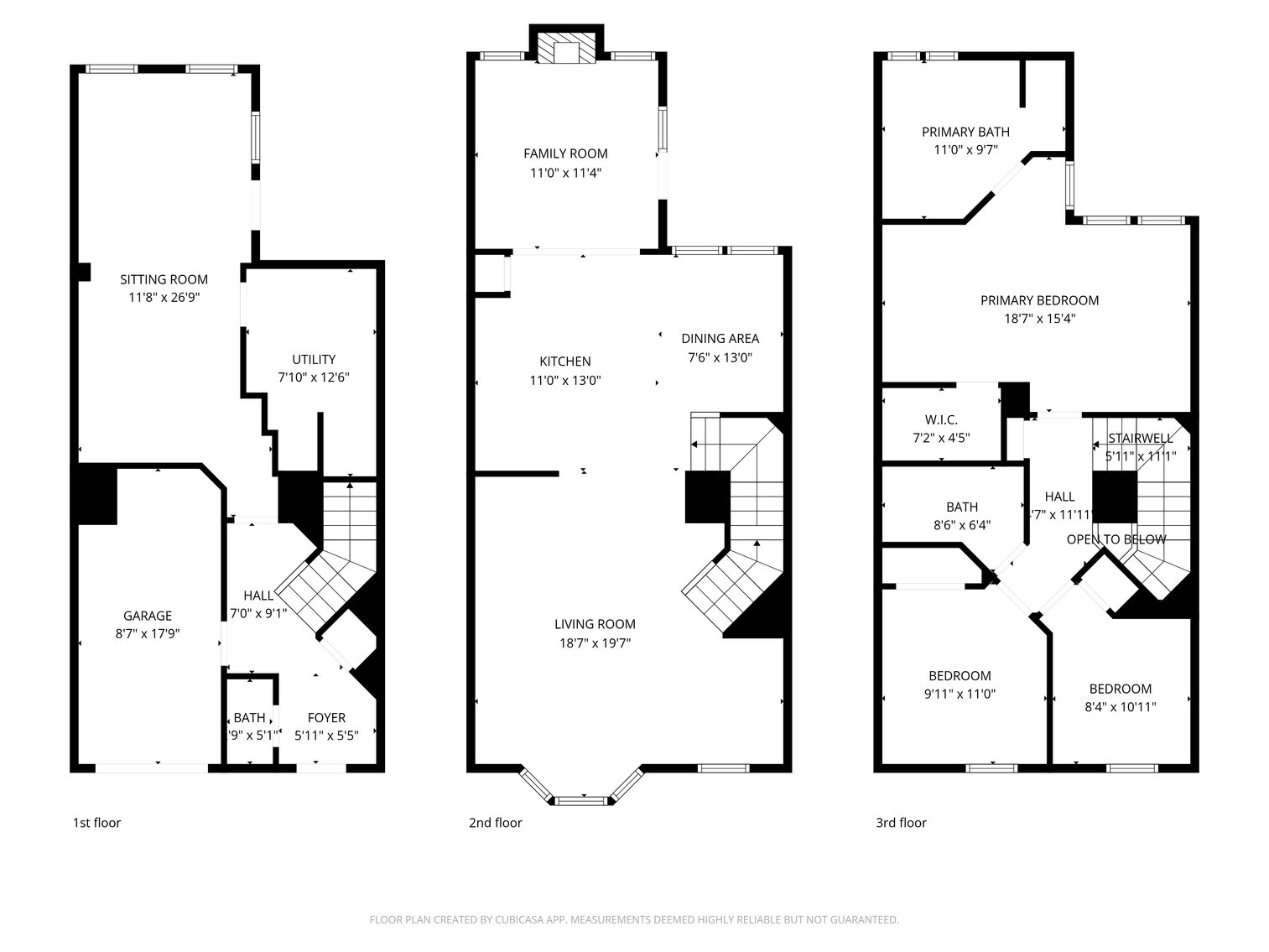
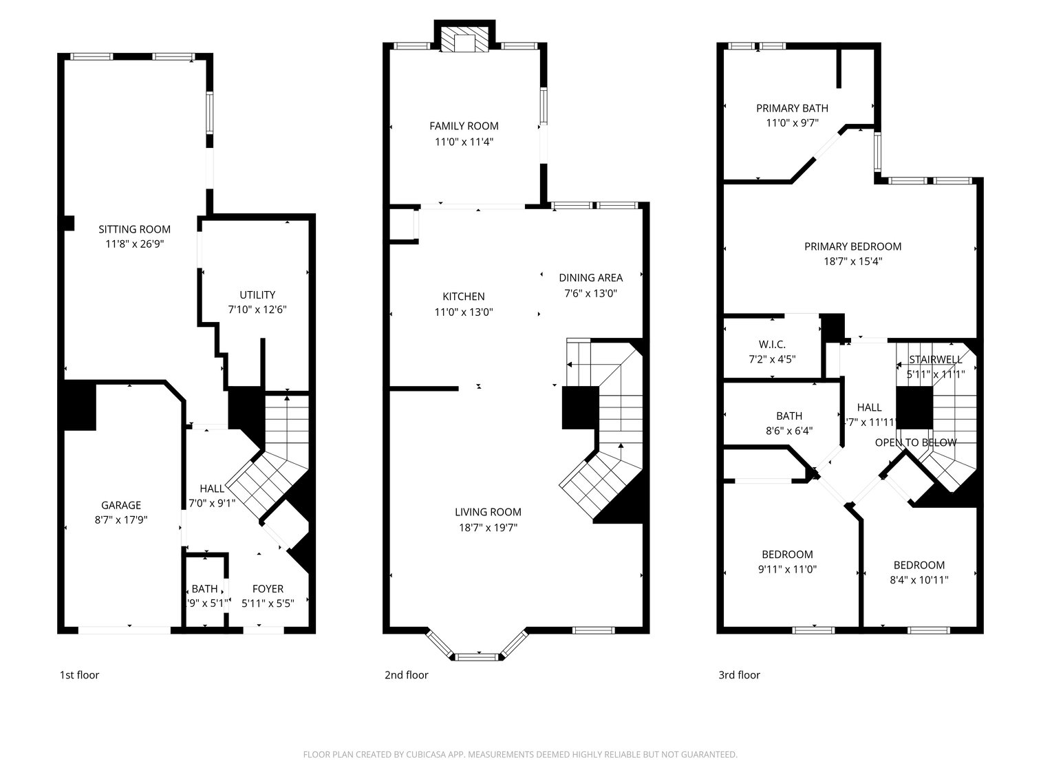
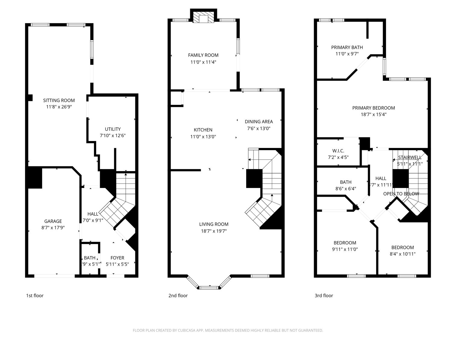
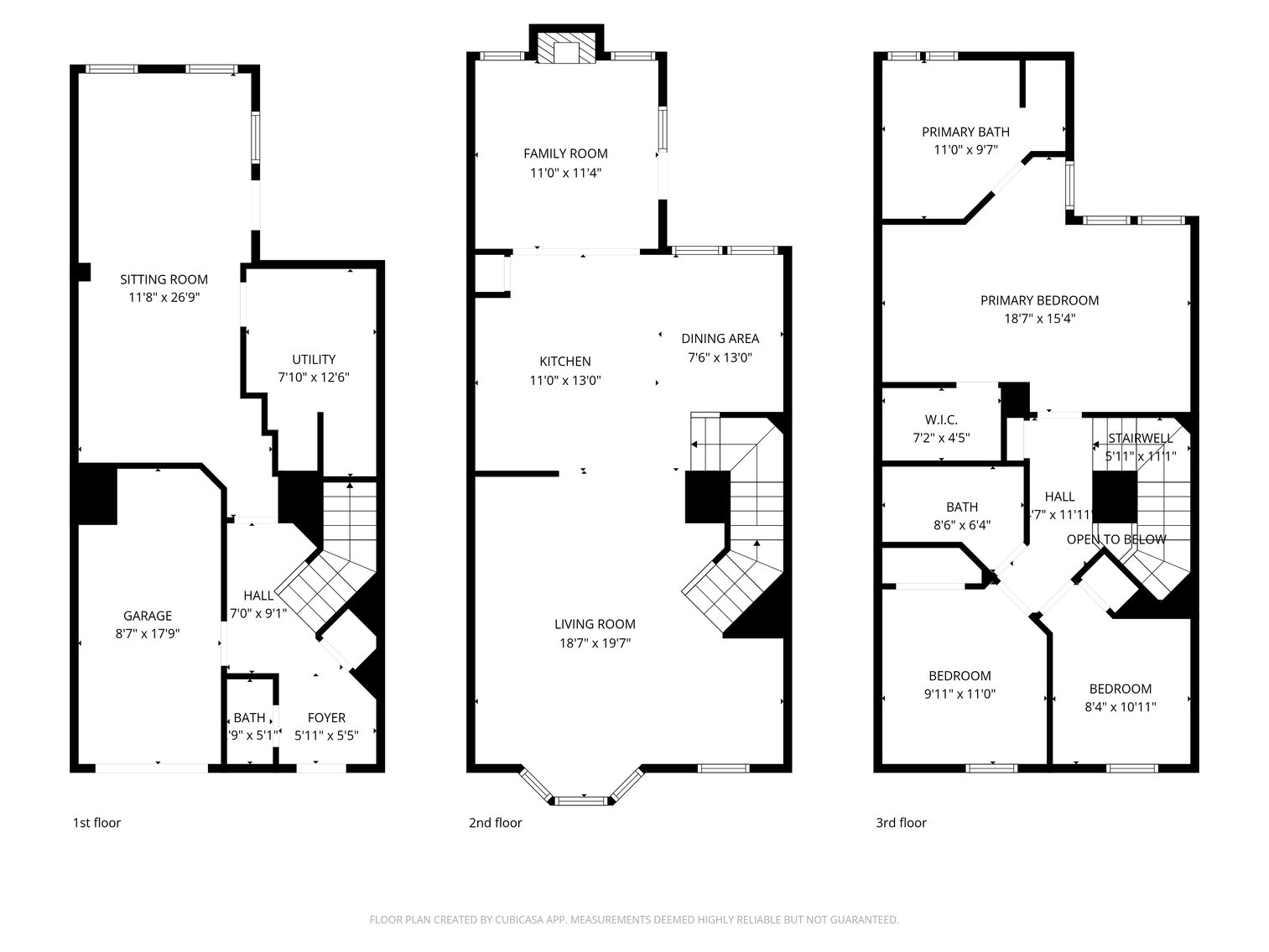
Move-In Ready, Fully Updated 3-Bedroom Townhome in Swedesboro – Solar, New Roof & More! Beautifully maintained and fully upgraded 3-bedroom, 2.5-bath townhome located in a quiet, friendly neighborhood within walking distance to downtown Swedesboro, shopping, restaurants, and everyday conveniences. This move-in ready home offers flexible living space across three levels. The first floor includes a laundry room, powder room, and a spacious bonus family room perfect for a home office, gym, playroom, or additional living area. The main living level features new hardwood floors, a cozy fireplace, and an open layout ideal for entertaining. The updated kitchen/fireplace room includes stainless steel appliances and a brand-new custom cabinetry/bar area adjacent to the kitchen, providing exceptional storage and added functionality. Upstairs you’ll find three generously sized bedrooms and two full bathrooms, including a private primary suite with en-suite bath.
Major system upgrades include:
• New roof
• New HVAC (AC & heater)
• Solar panels for significantly reduced electric bills
• Newly installed premium back door
• Freshly painted exterior trim
Low-maintenance living with high-end updates already completed — just unpack and enjoy.
Homes with new roof, new HVAC, solar savings, and walkable access to downtown Swedesboro don’t last long. Schedule your private showing today!


